Bureaux à vendre 8 pièces, 220 m² - La-Garde (83130)

Vendu

Informez-vous

06.29.89.10.97.

Bureaux

La-Garde 83130

508 800 €

8 pièces, 220 m² - Disponible le 14/03/2025

Situer sur la carte

Le Cabinet Devictor vous propose à la vente des locaux commerciaux !

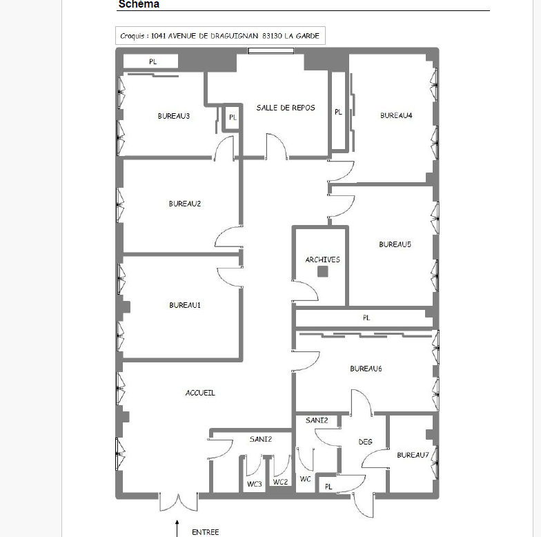
Situés à proximité de Toulon, dans le secteur de La garde, La Bastide Verte, vous trouverez des locaux commerciaux au 1er étage disposant d' une surface d’environ 220 m². Les espaces se divisent en 7 bureaux.

Vous y trouverez également une salle de repos, ainsi qu’une zone d’accueil.

Le bien comprend trois WC indépendants et une salle d’archive.

Taxe foncière 4118€
charges annuelles 6800€

A proximité immédiate de l'autoroute.
Disponible rapidement.

Performance énergétique

Diagnostic de performance énergétique (DPE)

A
B
C
D
E
F
G

Indice d'émission de gaz à effet de serre (GES)

A
B
C
D
E
F
G

Voir le detail

Espace intérieur

8 pièces
Cuisine équipée
Chauffage Clim. réversible

Détail du prix de vente

Les honoraires sont à la charge du vendeur.

Prix de vente honoraires inclus: 508 800 €

Taxes foncières : 4 118 €

La copropriété

  • Bâtiment de étages
  • Bureaux au 1er étage

Le montant moyen annuel de la quote-part du budget prévisionnel pour les dépenses courantes est de 6800 €

Diagnostic réalisé le 22/02/2019

Logement très performant

A
B
C
D
E
F
Passoire énergétique
G
Passoire énergétique

Logement extrêmement consommateur d'énergie.

Consommation

(énergie primaire)

67

kWh/m².an

Emissions

2

kgCO2/m2.an

* Dont émissions de gaz à effet de serre

peu d'émissions de CO2

A
B
C
D
E
F
G

émissions de CO2 très importantes

2

kgCO2/m2.an