Maison à vendre 8 pièces, 225,33 m² - Carpentras (84200)

Informez-vous

06.29.89.10.97.

Maison

Carpentras 84200

477 000 €

8 pièces, 225,33 m²

Situer sur la carte

Le Cabinet Devictor vous propose une maison en pleine propriété à usage de local professionnel à la vente !

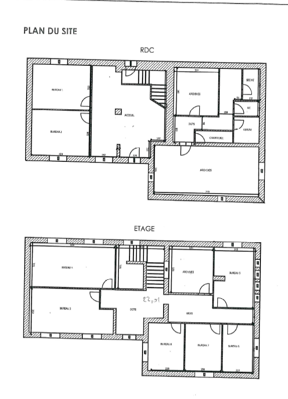
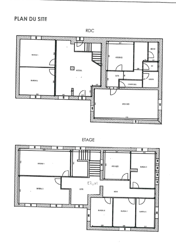
Situé à proximité du centre de Carpentras, dans un secteur calme et résidentiel, vous trouverez une Maison d'environ 225m² en R+1 à usage de local professionnel.

Se composant au RDC d'un plateau d'environ 112m² composé d'une grande entrée, de deux bureaux, une salle d'archive, une réserve, une salle d'eau, un WC, une chaufferie, d'une cuisine et d'une terrasse à l'arrière d'environ 40m².

Au premier étage vous trouverez un plateau d'environ 110m² composé d'un dégagement ainsi que 7 bureaux.

8 places de parkings privatives.

PRIX FAI : 477 000€
Contact
Fanny Barbarroux 06.29.89.10.97

Taxe foncière : 2 917€

Système de chauffage : Chaudière individuelle fioul standard installée entre 1991 et 2015. Emetteur(s): radiateur bitube avec robinet thermostatique

Système de production d’ECS : Ballon électrique à accumulation vertical (autres catégorie ou inconnue), contenance ballon 100 L

Le diagnostique énergétique à été réalisé après le 1 juillet 2021.
Consommation énergétique DPE : C -> 86 KWh/m² an
Bilan émission GES : C -> 12 Kg/co² an

Les + de ce logement

Terrasse

8 places

Performance énergétique

Diagnostic de performance énergétique (DPE)

A
B
C
D
E
F
G

Indice d'émission de gaz à effet de serre (GES)

A
B
C
D
E
F
G

Voir le detail

Espace intérieur

8 pièces
Cuisine équipée
Chauffage Clim. réversible

Détail du prix de vente

Les honoraires sont à la charge du vendeur.

Prix de vente honoraires inclus: 477 000 €

Taxes foncières : 2 917 €

La copropriété

Diagnostic réalisé le 16/04/2025

• Prix moyens des énergies indexés au : 22/02/2019

Logement très performant

A
B
C
D
E
F
Passoire énergétique
G
Passoire énergétique

Logement extrêmement consommateur d'énergie.

Consommation

(énergie primaire)

86

kWh/m².an

Emissions

12

kgCO2/m2.an

* Dont émissions de gaz à effet de serre

peu d'émissions de CO2

A
B
C
D
E
F
G

émissions de CO2 très importantes

12

kgCO2/m2.an